荫蒂被男人添A片视频
联系人:刘经理
手机:1390 6363 487
手机:1855 3611 672
电话:0536-6058547
Q Q:550128607
中文网址:www.曝气机.中国
网址:
地址:山东省诸城市密州街道东黄疃工业园
一、产品简介:
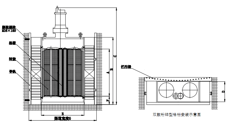
双转鼓粉碎型格栅除污机采用双鼓结构,是格栅除污机的一种,又叫破碎型格栅除污机,是市政、水利、泵站系统除污设备,能将污水管网中的末片、空瓶、布片等杂物垃圾进行粉碎,以保护泵站的设备使其正常运转。粉碎性格栅除污机能把污水中的悬浮和漂浮垃圾分碎成6-10mm的细小颗粒,粉碎后的污物无需打捞,直接随污水流走。粉碎型格栅泵站设备能全部安装在地下水池内,水池顶部封闭,这种泵站大大改变了传统泵站的工作环境差、噪音大、建设成本高、运行费用大等缺陷,粉碎型格栅真正意义上实现了全地埋无人值守。
该设备既可以与传统泵站配合使用,也可以单独使用,主要适用于污水处理厂和中转泵站。
二、型号说明:


五、工作原理:
拥有优的钛合金切割刀片设计,事例数十年来技术的进步和设计革新,建立一套有效可靠产品标准。钛合金切割刀片可以切碎多种破坏其它设备的固体颗粒,经证明适用于各种苛刻的环境。
1、固体颗粒随着污水进水切割区;
2、固体颗粒被转鼓截留并被输出到切割室;
3、大部分的污水和足够小的颗粒通过转鼓区;
4、固体颗粒被切割并通过切割室;
5、被粉碎后的颗粒流向下游。
六、应用范围:
1、安装于泵站、污水处理厂进口;
2、安装于大流量、宽幅面水渠中;
3、本机能粉碎的物品有:木棍、小石块、纸制品、木制品、塑料制品、橡胶制品、生活垃圾等。
七、电机选择:
普通电机:3kw或4kw
潜水电机:3kw或4kw
干湿两用电机:4.5kw或5.5kw
八、性能测试:
防护罩和驱动机构以及整台机械在工厂进行组装及试运行、验证机械符合设计规定的性能要求及有关标准。
发货前,对货物质量、规格、性能、数量等进行检验。
现场性能测试项目
1、检测外形尺寸、外观质量。
2、噪声检查:运行时,其噪声值不大于76db(A)。
3、电气控制应接线正确,排线整齐,无不安全因素等。
4、机械过载保护装置灵敏可靠,过载时发出报警信号,设备停止工作。
5、检验运转精度。整机试运转应平稳,连续运转48小时。设备工作时,整机运行平稳,无卡阻、刮擦和异常现象,机构动作灵活可靠。
九、特点:
1. 优化设计的刀片,保证切割能力和使用寿命。
2.双鼓设计,过水流量大,可以满足大流量的应用场合。
3. 格栅间隙小,小可达6mm,可有效保证切割尺寸。
4.进口电机减速机,提高了设备使用的可靠性。
5. 专门定制的机械密封系统,可长时间工作在恶劣的污水环境中。